The St. Anne 14CO3803

14CO3803
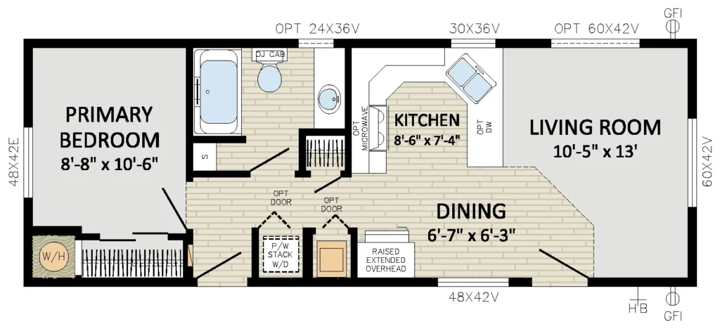
1 14' x 38'
1 532 sq. ft.

Standards and Specifications

Exterior
  • Roofing: Architectural Shingles
  • Siding: Maintenance-free Vinyl Lap
  • Fascia: White 8" Smart Trim
  • Front Eaves: 16"
  • Side Eaves: 14' - 15'8" = 3"
  • Side Eaves: 18' - 19'8" = 12" Fixed
  • Rear Eaves: 16"
  • Front End: Eyebrow
  • Windows: Double Low-E, Argon, PVC w/ Vinyl sills. Cordless Cellular Shades (excludes obscured & transoms)
  • Front Door: 36" 2-Panel Insulated with dead bolt and peep hole
  • Rear Door: 32" 2-Panel Insulated with dead bolt
  • Decorative Coach Light at all entrances (excl. porch)
Interior
  • Ceilings Surface: Textured Drywall
  • Flooring: Carpet: 14' - 15'8" = Primary Bedroom, Living Room; Quality Cushioned Linoleum in all other areas
  • Flooring: Carpet: 18' - 19'8" = Bare Floor t/O
  • Designer Glass Light Fixtures
  • Prefinished Standard White Interior Doors, Jamb & Wrapped Trim
  • Double Rod in Primary Bedroom Closet
  • Linen Closet (plan specific)
  • Utility Room Shelf
Kitchen
  • European Deluxe Cabinetry with Crown Moulding
  • Walk-In Pantry (plan specific)
  • Kitchen Island (plan specific)
  • Raised & Extended Fridge Cabinet
  • Ceramic Tile Backsplash
  • Double Stainless Steel Kitchen Sink
  • Chrome Single Handle Pull Out Faucet
  • Window over Kitchen Sink (plan specific)
  • Exterior Vented 30" Under Cabinet Range Hood w/ Light
  • 220v Range Plug
  • Fridge Receptacle w/ 36"x72" Cabinet Opening
  • Dining Light Chandelier (most models)
Bathroom
  • Ceramic Tile Backsplash
  • Vanity Mirror with Light Fixture
  • One-Piece Fiberglass Tub/Shower with Single Lever Faucet
  • Power Bath Fan on Separate Switch
  • GFI Receptacle
  • Comfort Height, Dual-Flush Toilet
  • Wall Mounted Over-John Cabinet
  • Shower Rod
Utilities
  • Electrical Service: 100AMP
  • Heating: 96% High Efficiency 2-Stage Gas Furnace, A/C Ready
  • Water Heater: 40 Gallon Electric
  • Radon Gas Pipe Installed
  • Smoke & CO2 Detectors per code
  • Wired, Plumbed & Vented for Washer & Dryer
  • Continuous Whole House Fan
  • Shut Off Valves at all Sinks
  • Exterior Frost-Free Tap
  • (2) Exterior GFI Electrical Outlets
  • Heat Tape Plug

2026
Square footage and room sizes are approximate. Due to our policy of progressive product improvements, all prices and specifications are subject to change without notice.

Popular Optional Features

Exterior
  • Flip, Mirror, Rotate Unit
  • 6'-10' Porch
  • Siding - Fiber Cement
  • Garage Ready Pkg - (2)15amp
  • Exterior - Increase Rear Entry To 36"
  • Exterior Light - Led Pot
  • 4/12 Residential Roof Pitch
  • Relocate Std Exterior Feature
  • A277 Basement Residential Pkg
  • Exterior - Patio Door 6'
  • Dormer
  • Upgrade Exterior Door (9 Lite, Victoria, Louisbourg)
  • Sidelights
  • Wolfe Creek Windows
  • Box Bay
  • Double Dormer
  • 167 psf Ground Snow Load Upgrade
Interior
  • White Windsor Trim
  • White Winthrop Doors
  • LED Pot Lights
  • Finished Drywall
  • Decora Switches and Receptacles
  • Legacy Fireplace Package
  • 9' Ceilings (Multi-Sections)
  • Wall Mount TV Package
  • Floorplan Stretch
  • Pocket Door
  • Barn Door
  • Phone/Cable Pre-wire
  • Ceiling Fan w/ Double Switch
  • Black Lever Handles
  • Utility Overhead Cabinets
  • Increase Doorway to 36"
Kitchen
  • Spacesaver Microwave
  • Dishwasher
  • Stainless Appliances
  • Gas Appliances
  • Solid Surface Countertops and Undermount Sinks
  • Bank of Drawers
  • Pots and Pans Drawer
  • Soft Closing Drawers and Doors
  • Eclipse Black Fixtures
  • Stainless Range Hood
  • Full Tile Backsplash
Bathroom
  • Bank of Drawers
  • Soft Closing Drawers and Doors
  • Walk-in Shower
  • Garden Tub
  • 36x10V Window
  • 24x36 Obsured Casement Window
  • Eclipse Black Fixtures
Utilities
  • 2X2 Truss Block (for wood stove installation)
  • Electric Furnace w/ 200 amp panel
  • 200 amp Service Panel

THE FACTORY BUILT ADVANTAGE

It’s all about design…

You can customize your floor plan, you can choose your décor. Do you need a large eat-in kitchen and island workspace for many chefs?

…or a quiet Master Bedroom retreat, generous walk-in closet and spa-like ensuite? Add the options that will make it personal so that it works for you and all your family members.